Logo

Comment pouvons-nous vous aider ? 👋

Trouvez des guides étape par étape, des conseils de dépannage et des explications de fonctionnalités pour tirer le meilleur parti de notre plateforme.

Partager des observations avec des intervenants sans compte ArchiSnapper

Collaborer dans ArchiSnapper

Partager des observations avec des intervenants sans compte ArchiSnapper

Partager en temps réel un aperçu des observations avec des intervenants externes

Dernière mise à jour 02 Apr, 2021

Vous pouvez partager une liste des observations avec les parties concernées depuis votre compte en ligne. Ils n'ont pas besoin d'un compte ArchiSnapper pour consulter cette liste.

Filtrer via le tableau "Observations"

  1. Accédez au tableau "Observations" de votre compte en ligne.

  2. Filtrez la liste des observations que vous souhaitez obtenir. Par exemple, filtrez sur toutes les observations pour le projet 'Miller Residence' avec le statut 'NOK' et qui sont attribuées au contact 'Steve Wood'.

  3. Cliquez sur "Rechercher".

Image

Conseil : Triez cette liste selon vos propres préférences en utilisant l'option "Trier et regrouper".


Partager la liste avec les observations filtrées

Vous pouvez maintenant partager cette liste de 3 façons.

Image

1. Sous forme d'un rapport PDF

  • Choisissez le modèle de mise en page que vous souhaitez utiliser.

  • Téléchargez le PDF avec les observations, et partage-le.

2. Sur un plan PDF

  • Téléchargez le fichier PDF du plan, y compris les observations numérotées.

  • Partagez le fichier PDF avec les parties concernées.

  • Les contacts qui ouvrent le PDF et cliquent sur les pointeurs de localisation numérotés verront les informations supplémentaires au sujet de cet observation.

Image

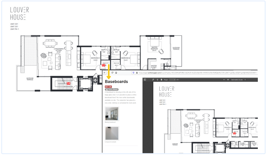
3. Partager un lien en temps réel avec un aperçu

  • Envoyez un lien unique aux contacts concernés.

  • Ils verront un aperçu en temps réel de toutes les observations correspondant aux critères de filtrage définis.

  • Voici un exemple.

Image

Conseil : Vous pouvez, par exemple, envoyer ce lien à des intervenants externes au début du chantier. S'ils enregistrent le lien dans leurs signets, ils peuvent toujours consulter en temps réel toutes les observations que vous leur attribuez.

Vous voulez aller un peu plus loin ? Inviter les parties assignées à fournir du feedback sur leurs observations via ArchiSnapper. Lisez ici comment cela fonctionne.

Vous avez des questions ? Contactez-nous: support@archisnapper.com

Did you find this article helpful?
Précédent

Envoyez un e-mail hebdomadaire avec les points ouverts aux contacts

Suivant